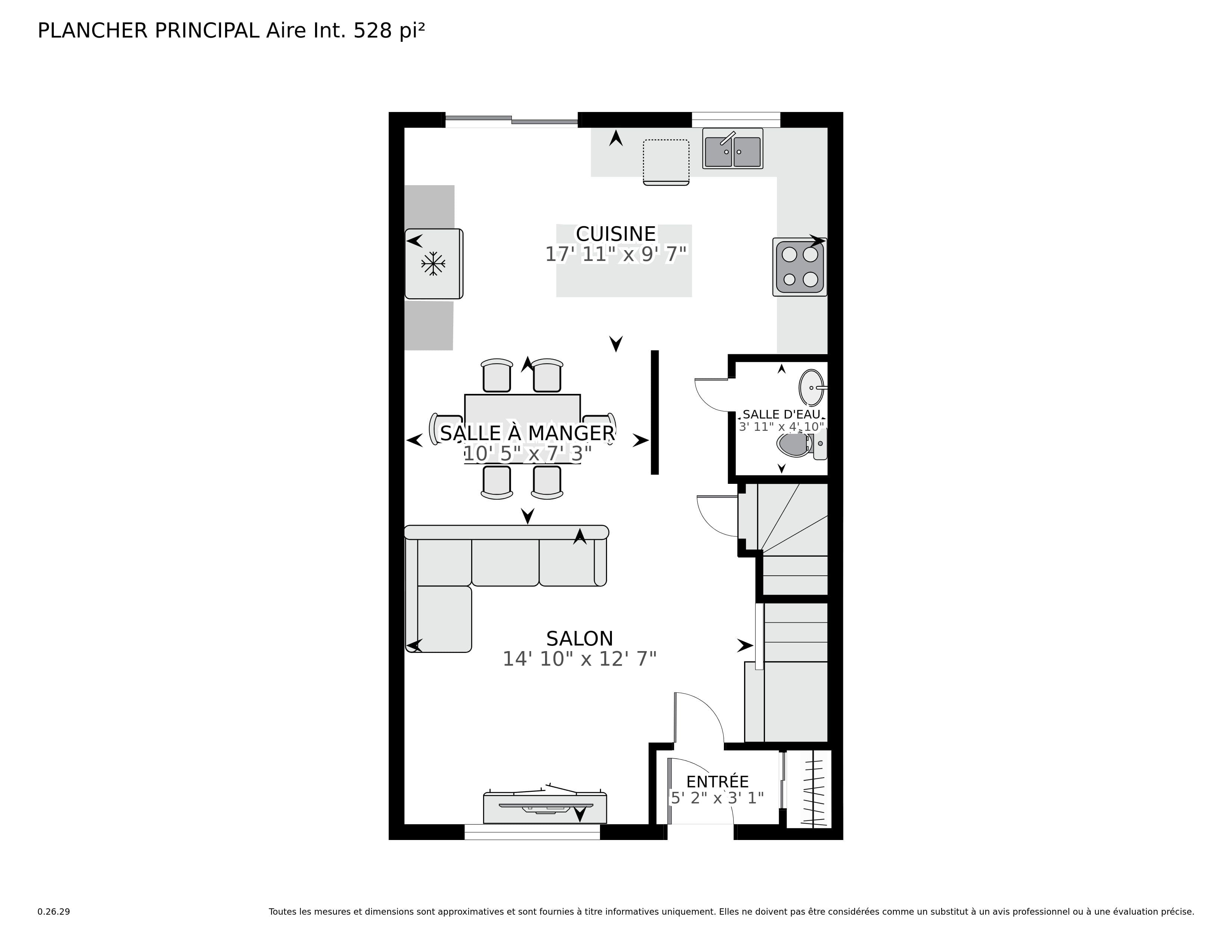
Une entrée en pavé uni vous amène à cette charmante maison de ville attachée dans un secteur recherché de Saint-Laurent. Le rez-de-chaussée moderne, à aire ouverte et rénovée vous offre un espace de vie confortable et pratique: cuisine agrandie de toute beauté, avec plusieurs fenêtres qui permettent à la lumière naturelle abondante de pénétrer créant une atmosphère chaleureuse et accueillante, une salle d'eau. À l'étage vous trouvez 3 chambres à coucher, salle de bain. Au sous-sol, une salle familiale avec une porte pour accéder au jardin, beaucoup de rangement, coin de lavage et accès au garage.
Le jardin est à moitié en pavé uni et l'autre partie en
"turf". Thermopompe murale. Vous apprécierez la proximité
des écoles primaires et secondaires, des garderies, les
transports en commun, le REM, ainsi beaucoup de services et
commodités.
Nouvelle cuisine avec îlot et ouverture des murs vers le
salon (2016).
Revêtement de toiture, changement de gouttière (2027) et
soffites (2024)
Changement de la porte patio et sept fenêtres changées en
2018
Remplacement de l'isolation de l'entretoit (2021) et
installation du pavé uni a l'entrée principale de la maison
en 2020.
Thermopompe murale 18 BTU 2022
Jardin avec pavé uni et "Turff" 2023
Remplacement des plinthes électriques 2024 (les deux dans
la cuisine en 2016)
Installation de thermostat intelligent à l'étage 2024
Pompe de puisard (sump pump) changée en 2025.
Un nouveau certificat de localisation sera commandé après
l'acceptation d'une Promesse d'achat.
Visite vidéo
Plans d'étage
Ce site utilise des services qui utilisent des cookies pour offrir une meilleure expérience et analyser le trafic. Vous pouvez en savoir plus sur les services que nous utilisons sur notre Politique de confidentialité.